แบบบ้านสองชั้นสไตล์โมเดิร์น
แบบบ้านสองชั้นสไตล์โมเดิร์น 72 Sentosa Cove House ออกแบบโดย ONG&ONG แบบบ้านสองชั้น แบบบ้านสองชั้นสวยๆ
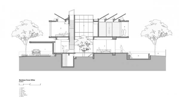
This is a home that can endure the tropical climate with minimal environmental impact, by tapping on available natural resources. Four levels make up the building, each catering to the family’s various social and entertainment needs while also accommodating each member’s individual need for solitude.
Achieving space maximisation and privacy were also factored into this design, in view of the house’s close proximity to neighboring units. As a result, the internal spaces face inward into a multi-functional courtyard which acts as circulation pivot, light well and ventilation exhaust, while also serving as a visual focal point. Dense foliage also provides a natural means for additional privacy.
The building’s slimmer east and west facades are a contrast to the wide-open north and south ones. This regulates natural lighting and wind ventilation for efficient thermal circulation. A pitched roof, with its series of repeating slopes, also generates additional skylight openings. And let’s also not forget that this is first and foremost a home for an active couple and their kids. For this, a lap pool and training room ensure that their fitness needs are taken care of























